The purpose of the grease interceptor is to reduce Animal and Vegetable Fats, Oils and Greases (AVFOG or FOG) in wastewater to acceptable levels. The acceptable level of AVFOG and FOG in wastewater as established by the authority with jurisdiction in your area will determine the size grease interceptor required. Several area ruling authorities have prepared a formula to follow when sizing grease interceptors. Sizing grease interceptors to hold large quantities of grease will reduce pumping and cleanout costs. Outdoor grease interceptors also provide easy access for maintenance and inspections while reducing the possibility of food contamination during cleanout. The health benefits alone make the value of an outdoor grease interceptor outweigh that of an indoor collection unit. The additional benefits of being watertight, durable and easily installed make outdoor precast concrete grease interceptors your best solution for your grease disposal needs. Our precast concrete grease interceptors stand apart from interceptors made of alternative materials.
Venting and Odor Control
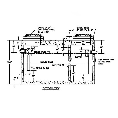
Building codes usually require the interceptor to be vented to a roof vent through the inlet plumbing. Improper venting of the building's plumbing system is the cause of most odor problems. Improper venting causes the gases to build up in the grease interceptor and can allow them to escape, leading to odor problems. Prevent odors by forcing any odor escape through the roof vents utilizing a well designed grease interceptor with gas-tight manhole covers and the proper building ventilation.
E.C. Babbert Precast Concrete Grease Interceptors
Our precast concrete grease interceptors adhere to the ASTM C1613 Specifications for Precast Concrete Grease Interceptor Tanks and IAPMO/ANSI Z1001 standard on Prefabricated Gravity Grease Interceptors. Our G-5, G-10, G-15 and G-20 models are UPC Approved.
Our grease interceptors are available in six standard sizes. We can quote and build custom engineered grease interceptors that meet the engineers' specifications or we can design and submit an alternate design for approval. With NPCA Plant Certification all of our suppliers must meet the same top quality standards we hold ourselves to and therefore all of the materials we provide will meet or exceed the applicable specifications.
Click here for information about our pumping service options as E.C. Babbert's service is second to none.
We understand your needs and speak your language.
Grease Interceptor Product List
We have worked with various city, county, state, and federal agencies and can assure that our product designs meet the various requirements and regulations. Following is a list of our standard Grease Interceptor products. If you need something you don't see here, please contact us for more information.
